Kamis, 21 Juli 2016

Phoenix III in Woodenboat Magazine

In late September this year, I was approached by Woodenboat Publications to see whether I would be prepared to write a "How to Build" article about Phoenix III. I was delighted to be given the opportunity, but the catch was that the manuscript, photos, and drawings had to be submitted in two weeks.


Dan Taylors home-built Phoenix III sailing in the Pacific North-West USA
(photo courtesy Dan Taylor and Nik Warden)
The writing didnt worry me too much, as I had plenty of material on hand. My major concern was that the plans for Phoenix III represented my very first attempt at using CAD as my drawing medium, and I had to teach myself as I went along. The program used was AutoSketch (from AutoDESK - the makers of AutoCAD) which is a very simple 2D product I use to this very day. Rather than relying on a sophisticated computer program to automatically produce drawings from 3D modelling, I determine the shape of my designs using a variety of methods - from carving a half-model to 3D modelling in DELFTship Professional. Once I have a three-dimensional shape which satisfies me, regardless of the method used, I take dimensions and draw the final CAD plans one line at a time in exactly the same way as I would on a drawing-board - it is just that I use a mouse instead of a pencil, and a screen instead of paper.

The original half-model which provided the starting point for the design


Drawing the lines of Phoenix III a long time ago.
I was not satisfied with the presentation of my early CAD drawings and had for a long time intended to re-draft the Phoenix III plans - not to alter the shape of the boat - just to make the plans more professional. The opportunity provided by the editors of Woodenboat left me little choice, as they wanted a complete set of building plans to accompany the three-part article, and I needed to consolidate the drawings from the previous 30-sheet (A3-sized) presentation to a smaller number of sheets, but making sure that the text and dimensions on the A1-sized sheets would be readable when reduced to the size of a magazine page.

The redrafting process took me about nine or ten days of intense effort, with most days starting early in the morning and running through until about 11pm. After that, I wrote and/or re-edited 16,500 words of text in four days!

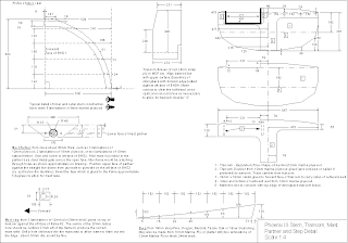
One of the new plan sheets
In the same manner as previously, I offer plans in either metric or imperial editions, and they are available in an A3 comb-bound format or as A1 rolled sheets at a substantially higher price due to the printing and postal costs. In both instances, the plans are identical except for the scale of the drawings, with the A3 edition being the standard. As soon as I have a new website published, I will also be offering pdf download editions.

The first part of the three-part article is now on the market in Woodenboat number 236  . You will be able to build the boat directly from the magazine if you wish - all you need to do is to purchase Woodenboat issues number 236, 237, and 238. Certain items will be missing, such as full-sized patterns for side deck hanging knees, boom jaws and oarlock blocks, but the information required to determine their shape is provided. However, the editors (and I) recommend the purchase of a full set of plans if you are serious about building.

Here is a link to a low-resolution video clip of Phoenix III sailing in light conditions, viewed from outside the hull. Despite the low image quality, the clip is worth viewing in order to see how the easily-driven, lean hull slices through the water. Video courtesy of Rick Sutton and Paul Hernes


Related Posts by Categories

0 komentar: